















Luxury semi-detached Villas Aquari
calle Aquari 18, Bahia Azul
Price : 1 400.000 eur
Construction starts
2025
Bedrooms
3
Bathrooms
3
Floors
2
Square meters
173
Crafted for your Serenity and Comfort.
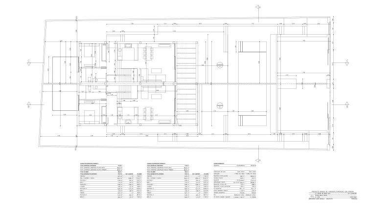
These modern semi-detached luxury homes feature 3 spacious bedrooms, 3 bathrooms and a 173 m2 living area spread across two floors, situated on a 387 m2 plot. Each house includes a 52 m2 private parking space for two cars, a garden with a private saline chlorination swimming pool, featuring a self-filling system, spacious outdoor terraces, and a stunning 70 m2 rooftop terrace.
The homes are equipped with an External Thermal Insulation Composite System (ETICS/SATE), CORTIZO minimalist aluminium joinery for elegant exteriors with sliding aluminium and motorized roller blinds, an underfloor heating system, a mechanical ventilation system, a photovoltaic panel system with a hybrid inverter, an electric vehicle charging point, a water softener system, and a reverse osmosis water purifier. Additional features include custom-made MDF closets in bedrooms and hallways, a 6m2 dressing area with a walk-in closet in the master bedroom, and a custom-designed kitchen with natural oak-veneered MDF base cabinets, glossy white lacquered wall cabinets, and a Krion countertop and backsplash. For more information, please contact us.

Your dream home awaits in a peaceful urbanization in Mallorca, offering a beautiful partial sea view and sunlight all day long.
Schedule a personal visit
LUCMARSAL SL







